
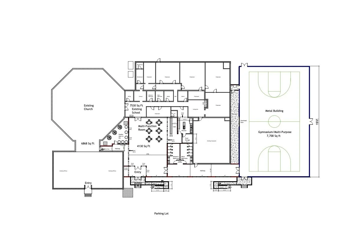
We are thrilled to announce that we’re building a brand-new gymnasium! This new space will provide opportunities for athletics, school activities, church events, community outreach, and so much more.
We are currently raising funds for this exciting project, and we would love for you to be part of it. Every gift, no matter the size, brings us one step closer to making this vision a reality. If God puts it on your heart to give, please consider making a donation today.
This gymnasium is more than just a building — it's a place where faith, fellowship, and growth take place. Whether it’s students developing teamwork skills, church members enjoying fellowship nights, or families gathering for special events, this facility will be a blessing to our entire community.